OYO Thame

Howland Road, Thame, Oxfordshire OX9 3GQ

(South Oxfordshire District Council)

 

ALL UNITS SOLD

 

OYO Thame is located to the south east of Thame town centre within the town’s main industrial area fronting Howland Road (B4012 Thame Ringroad) and is situated approximately 6 miles from the M40 (Junction 7/8A) which provides quick and easy access to Oxford to the west (via the M40/A40), Birmingham to the north west and High Wycombe, the M25 and Central London to the south east.

 

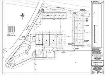
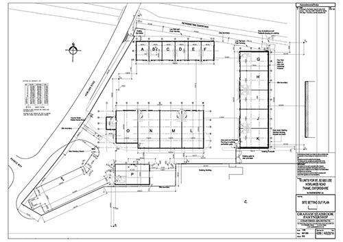
OYO Thame comprises 16 high quality business units for industrial/warehouse use totalling 47,543ft² ranging in size from 1,466ft² (136m²) up to 6,0225ft² (560m²) each having a generous self-contained loading yard with allocated car parking and all benefitting from detailed planning permission granted by South Oxfordshire District Council for all uses within Use Classes B1(b&c), B2 & B8, arranged as follows:

You may download the marketing brochure here

 

Misrepresentations Act 1967: whilst all the information above is believed to be correct, Ravenbourne does not guarantee its accuracy nor is it intended to form part of any contract. All areas quoted are approximate measured Gross External Areas.