OYO Littlehampton

Block B, Arndale Road, Wick, Littlehampton, West Sussex BN17 7GA

(Arun District Council)

 

CURRENTLY NO UNITS AVAILABLE

(although units may become available for sale or re-letting from time-to-time)

 

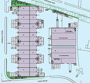
Littlehampton is situated approximately 24 miles to the west of Brighton and 14 miles to the east of Chichester and OYO Littlehampton is located on the west side of Littlehampton within the Lineside Industrial Estate on Arndale Road opposite Jewsons. Littlehampton town centre is approximately 1 mile to the east whilst the A27 south coast trunk road is approximately 4 miles to the north and provides good access to the A3(M) in the west and the M23 in the east, 25 and 33 miles away respectively.

 

OYO Littlehampton comprises of 18 high quality business units for industrial/warehouse use totalling 40,132ft² ranging in size from 1,252ft² (116m²) up to 8,622ft² (801m²) each having a generous self-contained loading yard with allocated car parking and all benefitting from detailed planning permission granted by Arun District Council for all uses within Use Classes B1(b&c), B2 & B8, arranged as follows:

You may download the marketing brochure here

 

Misrepresentations Act 1967: whilst all the information above is believed to be correct, Ravenbourne does not guarantee its accuracy nor is it intended to form part of any contract. All areas quoted are approximate measured Gross External Areas.